AT100 Power & Free Range Conveyor Project Underway
24th March 2025
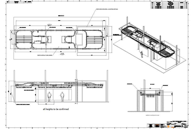
This is a recent project that we’re engineering, soon to be manufactured ready for installation in May. The conveyor is our AT100 Power and Free range, with a trolley load capacity of 100KG each. The dual Trolley load bar configuration offers a load capacity of 200KG with product dimensions up to 3000 mm in line, 2100 mm high and 200 mm wide with 360 degree indexing rotation. The system offers a super-efficient and compact design by utilising the Power and Free functionality with the side shuffle inside the oven and loading bay. More updates to follow.
#AmberIndustries #Conveyors #ConveyorsSystems #PalletSystems #GravityConveyors #PoweredConveyors #BeltRollers #LineshaftConveyors #ChainConveyors #SlatConveyors #AirportConveyors #SortationConveyors #TransferConveyors #OverheadConveyors #UKConveyors #MaterialsHandling
Other Articles
Bespoke Handling Solutions
3rd March 2025
Amber Industries on Stand G10N at Surface World
26th February 2025
Visit Amber Industries At Surface World 2025
13th February 2025
Bespoke Handling Solutions
4th February 2025
Conveyor Maintenance & Repair Services
9th January 2025
Season's Greetings From Amber Industries
9th December 2024
Ancillary Equipment From Amber Industries
5th November 2024
Steel Slat, Modular Plastic & Wire Mesh Belt Conveyors
2nd October 2024
Amber Automation Pallet & Heavy Duty Chain Conveyors
3rd September 2024
Amber Automation Level & Incline Belt Conveyors
5th August 2024